Επισκέπτες

359468
ΣήμεραΣήμερα24
ΧθέςΧθές49
ΕβδομάδαςΕβδομάδας140
ΜήναΜήνα1604
ΣυνολικάΣυνολικά359468

Αυτήν τη στιγμή επισκέπτονται τον ιστότοπό μας 273 επισκέπτες και κανένα μέλος

facebook

DYPA banner EPIXEIRISEIS Prigrammata TAA

Ιερές Μονές

Ιερά Μονή Παναγίας Σπηλιάς

ΥΠΟ ΚΑΤΑΣΚΕΥΗ

 

 

 

 

Απόψεις της Ιεράς Μονής πριν τις εργασίες αποκατάστασης:

 

01.jpg 02.jpg 03.jpg 04.jpg 05.jpg 06.jpg 07.jpg 08.jpg 09.jpg 10.jpg 11.jpg

 

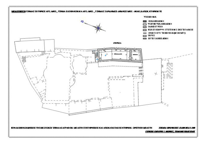
Μελέτη αποκατάστασης της Ιεράς Μονής:

 

01.jpg 02.jpg 03.jpg 04.jpg 05.jpg 06.jpg 07.jpg 08.jpg 09.jpg 10.jpg 11.jpg 12.jpg 13.jpg 14.jpg

Πολιτική απορρήτου...

Χρησιμοποιούμε cookies για να διασφαλίσουμε ότι θα σας προσφέρουμε την καλύτερη εμπειρία στον ιστότοπό μας. Αν συνεχίσετε να χρησιμοποιείτε αυτόν τον ιστότοπο, θα υποθέσουμε ότι συμφωνείτε με αυτή την πολιτική...